Dantherm Wall Mounted Air To Air Heat Recovery Dehumidifiers

Dantherm dehumidifiers are engineered for efficient, reliable humidity control in indoor pool environments.

Designed to protect both air quality and building structure, these high-performance systems offer flexible installation options and energy-saving features.

They have a larger air heating capacity than the original Vaporex dehumidifier with a comparative physical size and minimal adjustments to the pipework connections.

These new Dantherm dehumidifiers are a replacement for the old wall mounted Vaporex dehumidifiers.

Why Is Dehumidification Essential for Indoor Pools? Click here to learn why a dehumidifier is an essential piece of equipment in an indoor pool.
Free Shipping

Was:

£3,906.00

Now

£3,596.00

*

Free UK Delivery Over £60*
UK Mainland Only (Excludes Highlands)
Excludes Hot Tubs & Swimspas

All Prices include VAT
*Some product exclusions apply; see individual products for any applicable surcharges

Brochure Request

High levels of humidity left unchallenged, can be a major problem in an indoor pool environment water evaporating from the pool or spa surface increases air humidity, and can eventually lead to mould or even structural damage or collapse. In the past, the conventional approach to combating high humidity came in the form of wasteful air extraction from the pool hall. Nowadays, the science of humidity control has moved into another realm.


The advanced range of Dantherm dehumidifiers provides an efficient and economical solution : High-Performance, Low-cost Units - Dantherm dehumidifiers minimise the need for costly air extraction.


Operating on the heat pump principle, these high-performance units re-circulate pool air, therefore removing the moisture content and delivering warm, dry air back to the pool hall. By working in this way, they maintain a comfortable humidity level, minimise condensation and keep heating costs at the lowest possible level.


Automatic Control, Assured Comfort - Each Dantherm dehumidifier is equipped with a variable humidistat for automatic control. The recommended humidity level is set between 60% and 65% RH which ensures a comfortable environment.


Key Features

  • Aluminium housing
  • Corrosion resistant coating
  • Electronic humidistat
  • Factory fitted electric and LPHW heating coils
  • 2 fan operating modes - cycle and continuous
  • R454C Refrigerant
  • Dual position LPHW pipework connections
  • Fully anti corrosion coated units
  • Designed to fit on the existing Vaporex wall mount bracket
  • Inbuilt electric heater thermostat

 

*Includes one separate air stat. Air stat needs to be connected to a motorised valve (valve and transformer NOT supplied).

All LPHW models require a hot water supply at 80oC.
At a lower hot water supply of 55oC , LPHW drops to DH35 -1.9kW and DH65 - 3.8kW. Excluding reheat.

All Dehumidifiers come with a 2 year parts and labour warranty.


Models Available:

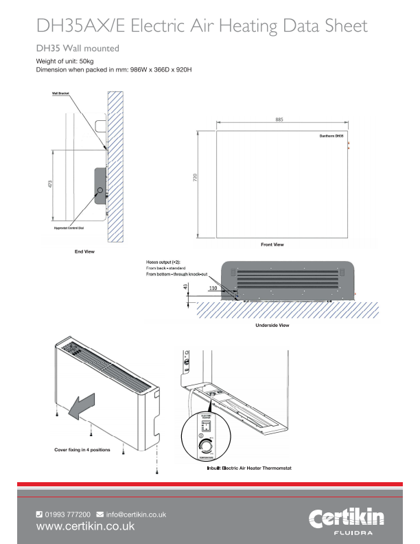
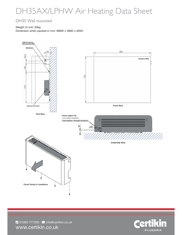
DH35AX Dantherm DH35 Dehumidifier + Defrost
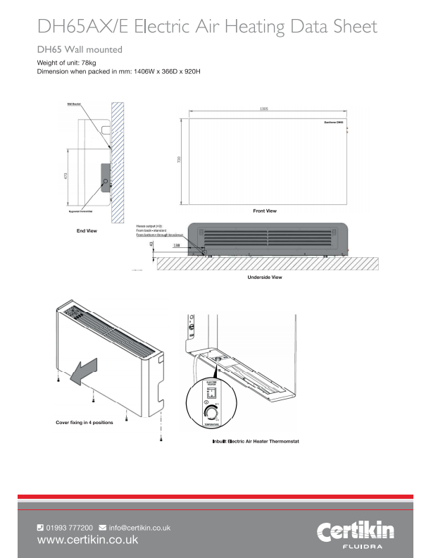
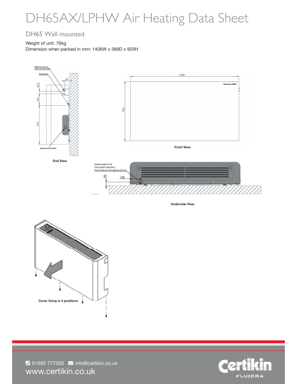
DH65AX Dantherm DH65 Dehumidifier + Defrost
DH35AX/L Dantherm DH35 Dehumidifier + Defrost + 3.8kW LPHW Heating*
DH65AX/L Dantherm DH65 Dehumidifier + Defrost + 7.5kW LPHW Heating*
DH35AX/E Dantherm DH35 Dehumidifier + Defrost +2kW Electric Heating
DH65AX/E Dantherm DH65 Dehumidifier + Defrost + 3.5kW Electric Heating

Overview

High levels of humidity left unchallenged, can be a major problem in an indoor pool environment water evaporating from the pool or spa surface increases air humidity, and can eventually lead to mould or even structural damage or collapse. In the past, the conventional approach to combating high humidity came in the form of wasteful air extraction from the pool hall. Nowadays, the science of humidity control has moved into another realm.


The advanced range of Dantherm dehumidifiers provides an efficient and economical solution : High-Performance, Low-cost Units - Dantherm dehumidifiers minimise the need for costly air extraction.


Operating on the heat pump principle, these high-performance units re-circulate pool air, therefore removing the moisture content and delivering warm, dry air back to the pool hall. By working in this way, they maintain a comfortable humidity level, minimise condensation and keep heating costs at the lowest possible level.


Automatic Control, Assured Comfort - Each Dantherm dehumidifier is equipped with a variable humidistat for automatic control. The recommended humidity level is set between 60% and 65% RH which ensures a comfortable environment.


Key Features

  • Aluminium housing
  • Corrosion resistant coating
  • Electronic humidistat
  • Factory fitted electric and LPHW heating coils
  • 2 fan operating modes - cycle and continuous
  • R454C Refrigerant
  • Dual position LPHW pipework connections
  • Fully anti corrosion coated units
  • Designed to fit on the existing Vaporex wall mount bracket
  • Inbuilt electric heater thermostat

 

*Includes one separate air stat. Air stat needs to be connected to a motorised valve (valve and transformer NOT supplied).

All LPHW models require a hot water supply at 80oC.
At a lower hot water supply of 55oC , LPHW drops to DH35 -1.9kW and DH65 - 3.8kW. Excluding reheat.

All Dehumidifiers come with a 2 year parts and labour warranty.


Models Available:

DH35AX Dantherm DH35 Dehumidifier + Defrost
DH65AX Dantherm DH65 Dehumidifier + Defrost
DH35AX/L Dantherm DH35 Dehumidifier + Defrost + 3.8kW LPHW Heating*
DH65AX/L Dantherm DH65 Dehumidifier + Defrost + 7.5kW LPHW Heating*
DH35AX/E Dantherm DH35 Dehumidifier + Defrost +2kW Electric Heating
DH65AX/E Dantherm DH65 Dehumidifier + Defrost + 3.5kW Electric Heating

Brochures
Useful Documents
Product tags
A.J & J.L Veysey | Company registration no: 1061642 | VAT no: GB133 4078 90
All Swim Ltd, Units 3-5 Link Trade Park, Penarth Road, Cardiff CF11 8TQ

Modal